​+36 70 416 4232
Innovatív emelő-toló ajtó

Schüco LivIngSlide

Az új Schüco emelő-toló rendszer egyesíti a maximális gyártási és beépítési hatékonyságot, a legmagasabb szintű kényelemmel és formai kialakítással. 

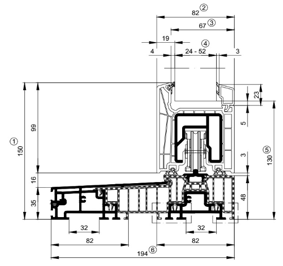
Az innovatív Schüco LivIngSlide emelő-toló szerkezetet 82 mm-es beépítési mélységű szárnyprofillal tervezték, a Schüco LivIng rendszer paraméterei alapján. 

Ez a rendszerkompatibilitás hozzáférést biztosít számos kiegészítő profilhoz, mint például: üveglécek és más üvegezési tartozékok. Az egységes rendszerméretek lehetővé teszik az egyszerű és rugalmas tervezést, valamint biztosítják a beépítési változatok alkalmazását. 

A jelentősen csökkentett alkatrészválasztéknak köszönhetően a raktározásra kevesebb erőforrást kell fordítani.Az új emelő-tolóajtó rendszer számos tervezési előnyt kínál, mint például a szárnyban elhelyezett merevítő acél zártszelvények. 

Ez jelentősen megnöveli a szerkezet stabilitását, és lehetővé teszi a 400 kg-os szárnyakkal rendelkező nagyméretű elemek építését.

A Schüco LivIngSlide külön kiemelkedő tulajdonsága: a gyárilag begörgőzött, hegeszthető EPDM üvegező tömítések a szárnyban.
Ezek gondoskodnak a lágy belső sarkokról, még a hegesztési folyamat után is, és így biztosítják az optimális tömítettséget ezen a területen. 

Ezen kívül, a szárny és a tok kapcsolatának több síkján elhelyezkedő körbefutó tömítések megbízhatóan csökkentik a huzat és a kondenzáció kialakulását. A szárnyak alsó részén speciális támaszok akadályozzák meg a görgőkocsik elferdülését.

Az új emelő-tolóajtó rendszer másik erőssége az esztétikus megjelenés. Síkban záródó kialakítása elkerülhetővé teszi a fix elemeknél a rések megjelenését és modern vonalvezetést eredményez, ugyanakkor könnyen tisztítható. 

A keskeny középső csatlakozás a maximális fény bejutását biztosítja a belső térbe. 

A Schüco LivIngSlide a Schüco színkoncepcióba történő integrálásnak köszönhetően a tervezési lehetőségek széles skáláját kínálja.
hőhídmentes küszöb és alumíniumból készült hőhídmentes statikai erősítés: kiváló hőszigetelés és izotermák
innovatív, élethosszig tartó EPDM gumitömítések: optimális funkcionalitás és vízzárás
a 194 mm mélységű tokprofil lehetővé teszi a beépítést az új építésű és felújítás alatt álló épületekben is
elemváltozatok széles kínálata fix és mozgatható szárnyakkal
választható: panoráma üvegezés rögzített részekhez
különösen lapos küszöb a könnyű belépés és kilépés érdekében
széles színválaszték: külső alumínium borítás, exkluzív Schüco AutomotiveFinish felületi technológia és Schüco UnlimitedFinish műanyag fóliák
szállítás egy helyről, a Schüco emelő-toló vasalattal együtt
Vissza

 Albetti Kft.

8051 Sárkeresztes | Móra Ferenc u. 47.

+36 70 416 4232

+36 70 319 5891

albettikft@gmail.com